theyocto
The UK’s smallest, yet fully functional, pre-fabricated home:
• Ultra-small yet fully-functional living units – radical design and engineering addressed to meet the absolute smallest limits of UK Building Regulations, including:
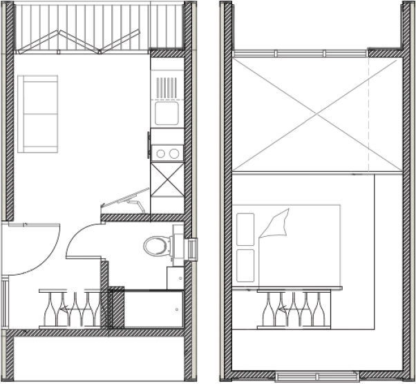
• Net internal area ±190 sqft (18 sqmt)
• Designed to be sited on a small pad, steel groundscrews or compacted hardcore and mini-piles (depending on the site)
• Typically installed on site over 2-3 days after delivery and positioning by crane
• Available as a 'self-build' kit which can be customised by the client
• Complete with everything necessary for super-compact, self-contained living for 1 / 2 people: contemporary custom furniture, integrated storage cupboards, fitted kitchen, convertible vaulted dining/recreation space and bathroom
• Ideal accommodation for students, holiday parks, leisure facilities, teenagers’ rooms, grown-up children (the ‘boomerang generation’), or live-in home help (e.g. carers or nannies)
• Compact enough to fit in a typical garden, and much cheaper and faster than the average home extension
• Ultra-small yet fully-functional living units – radical design and engineering addressed to meet the absolute smallest limits of UK Building Regulations, including:
- fully steel-framed rigid structure
- class leading insulation methods to offer excellent air-tightness
- mechanical ventilation and heat recovery (MVHR) system
• Detached, or semi-detached options for multiple units with excellent soundproofing on party walls.- class leading insulation methods to offer excellent air-tightness
- mechanical ventilation and heat recovery (MVHR) system
• Net internal area ±190 sqft (18 sqmt)
• Designed to be sited on a small pad, steel groundscrews or compacted hardcore and mini-piles (depending on the site)
• Typically installed on site over 2-3 days after delivery and positioning by crane
• Available as a 'self-build' kit which can be customised by the client
• Complete with everything necessary for super-compact, self-contained living for 1 / 2 people: contemporary custom furniture, integrated storage cupboards, fitted kitchen, convertible vaulted dining/recreation space and bathroom
• Ideal accommodation for students, holiday parks, leisure facilities, teenagers’ rooms, grown-up children (the ‘boomerang generation’), or live-in home help (e.g. carers or nannies)
• Compact enough to fit in a typical garden, and much cheaper and faster than the average home extension









For pods and smaller accommodation units, try our sister brand denrooms:

© Copyright 2017. All Rights Reserved.
Top

© Copyright 2017. All Rights Reserved.



